Available Home Plans - Phase 1A Options
Ashland
*Estimated & subject to change.
The Ashland is a beautifully designed two-story home offering spacious open-concept living with abundant natural light throughout. The expansive kitchen features a large island and walk-in pantry, flowing seamlessly into the bright family room, creating comfort and connection.

- Stunning contemporary home featuring a spacious front yard garden and stylish architectural details.
- Welcoming community entrance featuring landscaped greenery at Bridlewood of High Springs.
Available Home Plans - Phase 1A Options
Berrington
*Estimated & subject to change.
The Berrington features an open-concept main living area filled with natural light and designed for entertaining. The spacious kitchen includes a large island, abundant cabinetry, and a generous pantry. Upstairs offers additional bedrooms, a versatile loft area, and a private primary suite, creating a balanced layout for modern family living in High Springs.

- Beautiful modern two-story home featuring gray siding, large windows, and a spacious front yard in Bridlewood of High Springs.
- Story house with garage, kitchen, family room, and bedrooms.
Available Home Plans - Phase 1A Options
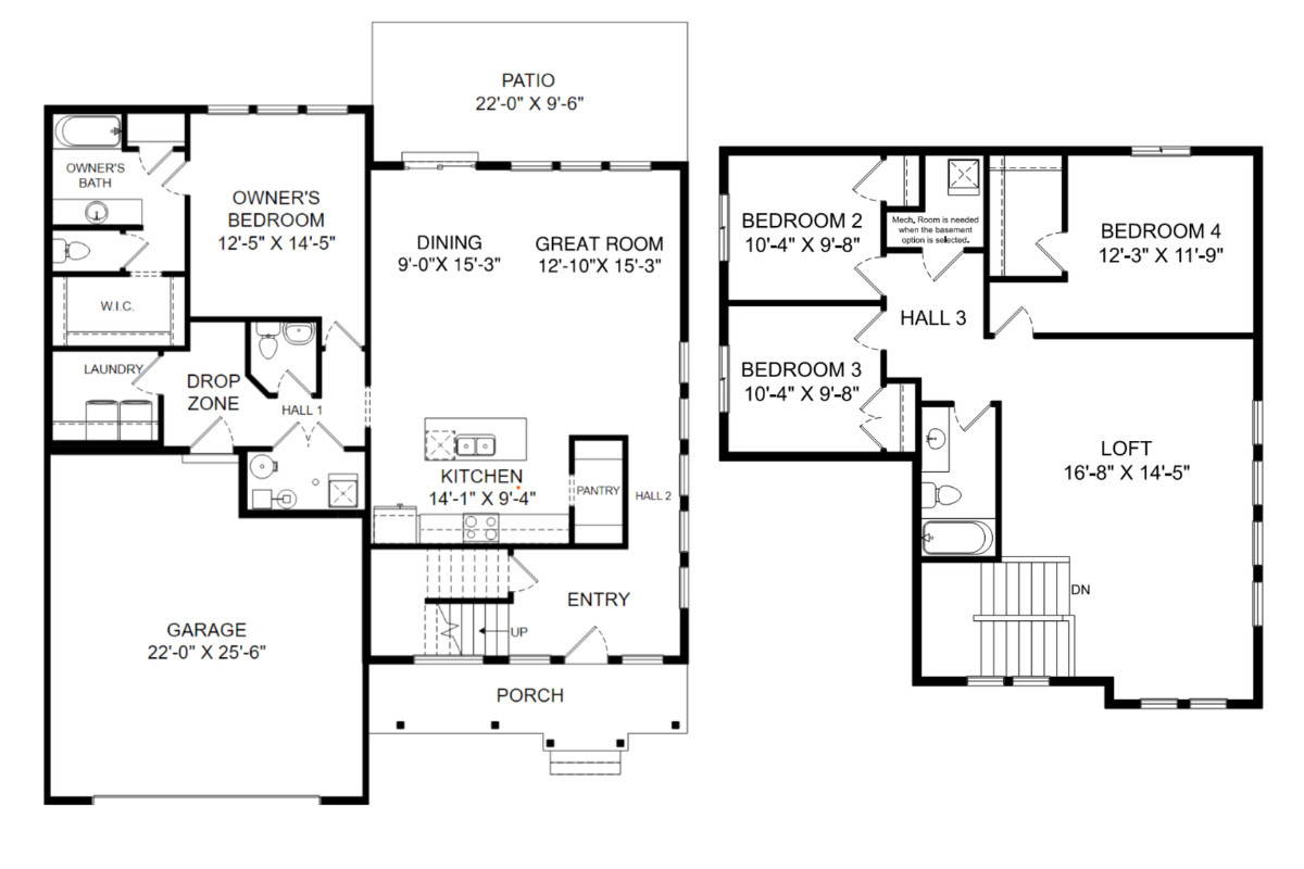
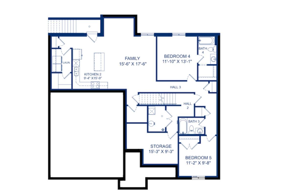
Brantwood
*Estimated & subject to change.
The Brantwood is a beautifully designed home featuring light-filled living spaces and a functional open layout. The spacious kitchen, with its large island and expansive walk-in pantry, opens seamlessly into the dining area and great room, creating an inviting flow for everyday living. A private primary suite includes a generous walk-in closet and en-suite bath, while a front office offers flexible workspace. Smart design and thoughtful details make this home both comfortable and versatile.

- Story residence showcasing modern architecture and lush landscaping.
- A detailed floor plan of a beautiful home at Bridlewood of High Springs, showcasing spacious rooms and functional design.
Phase 1A
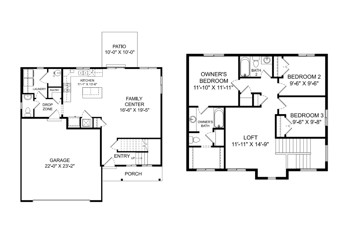
Canyon
*Estimated & subject to change.
The Canyon showcases bright, open-concept living with a spacious kitchen featuring a large island and walk-in pantry that flows seamlessly into the main family room. The private primary suite offers a relaxing retreat with a generous walk-in closet and well-appointed bath. Thoughtfully designed bedrooms and functional spaces like the mudroom and laundry area make this home ideal for comfortable, modern family living in High Springs.

- The Canyon offers bright, open living with a spacious island kitchen, private primary suite, and flexible bedroom layout.
- A detailed layout of a spacious single-story house with modern amenities and ample living space in Bridlewood of High Springs.
Phase 1A Options
Clearpoint
*Estimated & subject to change.
The Clearpoint offers spacious, open-concept living highlighted by a dramatic staircase and a bright family room open to the level above. The chef-inspired kitchen features a large island and butler’s pantry, creating the perfect space for gathering and entertaining. A private main-floor primary suite adds comfort and convenience, while flexible upstairs living spaces make this home ideal for growing families in High Springs.

- Elegant white home featuring a spacious front porch, well-maintained lawn, and surrounding greenery in High Springs, Florida.
- Detailed floor plan of Bridlewood of High Springs showcasing spacious living areas and bedrooms.
Phase 1A Options
Denford
*Estimated & subject to change.
The Denford features an open, spacious layout where the kitchen, dining, and family areas blend seamlessly for gathering and entertaining. A large island, walk-in pantry, and bright dining bump-out enhance the heart of the home. The private primary suite offers generous closet space, while additional bedrooms and functional areas like the mudroom and laundry room provide comfort and everyday convenience in High Springs.

- A beautiful, contemporary house featuring a large garage, well-maintained lawn, and charming exterior in Bridlewood of High Springs.
- Explore the Denford floor plan featuring open-concept living and a smart, functional bedroom layout.
Phase 1A Options
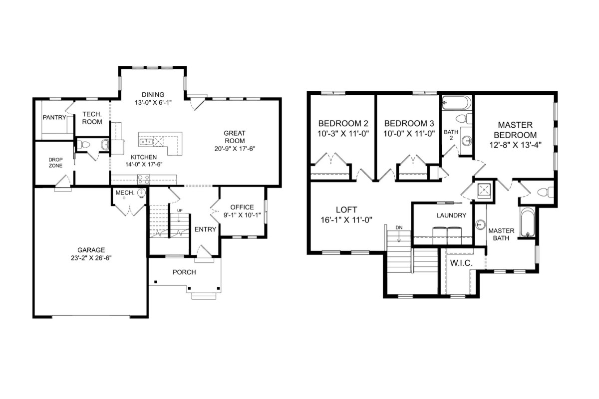
Edgeworth
The Edgeworth features a dramatic vaulted great room open to the upper level, creating a bright and airy atmosphere filled with natural light. The spacious kitchen offers abundant cabinetry and a large walk-in pantry, while the main-floor primary suite provides a private retreat with generous closet space and a spa-like bath. Flexible living areas and thoughtful design make this home ideal for modern living in High Springs.

- The Edgeworth showcases vaulted ceilings, open living spaces, and flexible design for modern family life.
- Explore the Edgeworth floor plan featuring vaulted living spaces and a versatile upper-level loft.
Phase 1A Options
Everley
*Estimated & subject to change.
The Everley features a thoughtful split-bedroom layout with the primary suite privately positioned on one side of the home and additional bedrooms on the other. A large island kitchen with abundant cabinetry and a walk-in pantry flows into the bright main living area filled with natural light. Designed for entertaining and everyday comfort, this home offers flexibility and modern living in High Springs.

- The Everley offers a split-bedroom design with open entertaining space and a spacious island kitchen.
- Explore the Everley floor plan featuring a split-bedroom layout and open living space ideal for families.
Phase 1A Options
Foxhill
*Estimated & subject to change.
The Foxhill offers a bright, open layout designed for both everyday living and entertaining. A spacious kitchen with a large island and walk-in pantry flows into the main family area and sun-filled dining space. Flexible rooms, including a main-level bedroom and upstairs loft, add versatility, while the private primary suite provides a relaxing retreat for comfortable living in High Springs.

- The Foxhill blends open living, flexible space, and natural light for modern family comfort.
- Explore the Foxhill floor plan featuring open living areas and a versatile loft design.
Phase 1A Options
Hadleigh
*Estimated & subject to change.
The Hadleigh features a bright, open layout designed for comfort and flexibility. A spacious kitchen with a large island and walk-in pantry flows into the main family living area, creating an inviting space for gathering. A flexible office or bedroom option on the main level adds versatility, while the upstairs primary suite and loft provide additional room to grow in High Springs.

- The Hadleigh offers open living, flexible spaces, and natural light throughout.
- Explore the Hadleigh floor plan featuring flexible living space and an open-concept design.
Phase 1A Options
Hyland
*Estimated & subject to change.
The Hyland features a bright, open layout designed for efficiency and comfort. A spacious kitchen with a large island and walk-in pantry flows into the main family living area, creating an inviting space for gathering. Flexible spaces including a main-level office and upstairs loft add versatility, while the private primary suite offers generous storage and everyday convenience in High Springs.

- The Hyland offers efficient design, open living spaces, and flexible rooms for modern families.
- Explore the Hyland floor plan featuring efficient design and flexible living space.
Phase 1A Options
Kensington
*Estimated & subject to change.
The Kensington is designed for main-floor luxury living, featuring a dramatic U-shaped staircase and an open gourmet kitchen with a large island and walk-in pantry. The bright dining and great room areas create an inviting space for entertaining, while the private primary suite offers expansive closet space and a spa-inspired bath. Thoughtful design and functional spaces make this home ideal for elevated living in High Springs.

- The Kensington offers main-floor luxury living with grand design and open entertaining space.
- Explore the Kensington floor plan featuring main-level luxury and expansive living spaces.
Phase 1A Options
Leighton
*Estimated & subject to change.
The Leighton showcases an open-concept design where the expansive great room flows into a spacious kitchen with a large island and abundant cabinetry. A flexible office on the main level adds versatility, while upstairs features additional bedrooms, a loft area, and a private primary suite. Thoughtfully designed for comfort and convenience, this home supports modern family living in High Springs.

- The Leighton offers open entertaining space, flexible rooms, and bright modern living.
- Explore the Leighton floor plan featuring open living and flexible space to grow.
Phase 1A Options
Norfolk
*Estimated & subject to change.
The Norfolk features a spacious open main floor designed for everyday living and entertaining. The wide-open kitchen includes a large island and pantry, flowing seamlessly into the main living area. Upstairs offers a flexible loft space, additional bedrooms, and a bright primary suite with a walk-in closet. Thoughtful design and smart storage make this home ideal for modern family living in High Springs.

- The Norfolk maximizes space with open living and flexible upper-level design.
- Explore the Norfolk floor plan featuring open living space and a versatile loft layout.
Phase 1A Options
Northfield
*Estimated & subject to change.
The Northfield is a popular open-concept design featuring a spacious great room filled with natural light and connected seamlessly to the island kitchen and dining area. A main-level office adds versatility, while upstairs offers additional bedrooms, a secondary family room, and a private primary suite. Designed for entertaining and everyday comfort, this home supports modern living in High Springs.

- The Northfield combines open entertaining space with flexible upper-level living.
- Explore the Northfield floor plan featuring open living and flexible family space.
Phase 1A Options
Pembroke
*Estimated & subject to change.
The Norfolk features a spacious open main floor designed for everyday living and entertaining. The wide-open kitchen includes a large island and pantry, flowing seamlessly into the main living area. Upstairs offers a flexible loft space, additional bedrooms, and a bright primary suite with a walk-in closet. Thoughtful design and smart storage make this home ideal for modern family living in High Springs.

- The Pembroke offers a grand entry, open entertaining space, and flexible garage options.
- Explore the Pembroke floor plan featuring open living space and flexible layout options.
Phase 1A Options
Ravenstone
*Estimated & subject to change.
The Ravenstone showcases an expansive open layout filled with natural light. The spacious family room flows seamlessly into a large island kitchen with an oversized pantry, creating the perfect space for entertaining. A private main-floor primary suite offers comfort and convenience, while additional bedrooms and flexible living areas provide room to grow in High Springs.

- The Ravenstone offers bright open living, generous space, and a main-floor primary retreat.
- Explore the Ravenstone floor plan featuring open living space and flexible upper-level design.
Phase 1A Options
Stanton
*Estimated & subject to change.
The Stanton features an open main living area where the spacious kitchen, dining space, and family room flow seamlessly together. A large island and walk-in pantry enhance functionality, while expansive windows fill the home with natural light. The private primary suite and additional bedrooms are thoughtfully positioned for comfort, making this home ideal for modern living in High Springs.

- The Stanton offers open living, natural light, and a functional split-bedroom layout.
- Explore the Stanton floor plan featuring open living space and a practical bedroom layout.
Phase 1A Options
Vanbrough
*Estimated & subject to change.
The Ravenstone showcases an expansive open layout filled with natural light. The spacious family room flows seamlessly into a large island kitchen with an oversized pantry, creating the perfect space for entertaining. A private main-floor primary suite offers comfort and convenience, while additional bedrooms and flexible living areas provide room to grow in High Springs.

- The Ravenstone offers bright open living, generous space, and a main-floor primary retreat.
- Explore the Ravenstone floor plan featuring open living space and flexible upper-level design.
Phase 1A Options
Westbrook
*Estimated & subject to change.
The Westbrook features a bright, open layout centered around an expansive great room and chef-inspired kitchen with a large island and deep pantry. A flexible office or second bedroom option adds versatility, while the covered patio extends living outdoors. The private primary suite and functional spaces like the mudroom and laundry room make this home ideal for modern living in High Springs.

- The Westbrook offers open living, natural light, and flexible main-level space.
- Explore the Westbrook floor plan featuring open-concept living and flexible design.
Phase 1A Options
Xavier
*Estimated & subject to change.
The Xavier showcases a striking U-shaped staircase and an expansive open main living area designed for entertaining. A chef-inspired kitchen with a large island flows into a bright dining space filled with natural light. Flexible areas like a tech room and upstairs family room add functionality, while the private primary suite offers a spacious retreat for modern living in High Springs.

- The Xavier blends grand design, open living, and versatile family space.
- Explore the Xavier floor plan featuring open entertaining space and flexible living areas.





















